akad. arch. Eduard Staša, Naše pravda, 1990
Pavel Novák, Zlínská architektura 1900 – 1950
Stával tady kdysi výstavný dům zlínského radního Antonína Minaříka a potom jeho syna, poštmistra. Svou velkou zahradou sahal až k panské cihelně pod Růmy. V třicátých letech pozemky koupila firma Baťa a v roce 1927 si tu postavil vilu J.A.Baťa, nevlastní bratr Tomášův a pozdější šéf podniku. K vile přiléhala komfortně založená zahrada s bazénem a tenisovým dvorcem. Po válce se ve vile uhnízdila ČTK a Čsl. rozhlas.
Rozlehlá zahrada uprostřed města lákala ke stavebnímu využití. A tak se po polovině čtyřicátých let zrodila myšlenka umístit zde obytný kolektivní dům. Šlo o novou formu bydlení, která se ve třicátých letech objevila v projektech architektonické avantgardy jak v Sovětském svazu, tak i u nás. A našla pak své pokračování v poválečných Le Corbusiérových kolektivních domech ve Francii, ale i v jiných pokusech v západních zemích. V letech 1948 – 1958 vznikl u nás kolektivní dům v Litvínově (arch. Linhart a Hilský). A přibližně v téže době se staví kolektivní dům zlínský podle návrhu ing. arch. J. Voženílka a kolektivu projektantů návrhového oddělení n.p. Svit. Zlínská stavba rozvíjí myšlenku započatou již dříve na Morýsových domech.
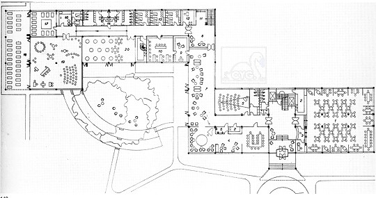
Kolektivní dům se 102 byty a přibližně 250 až 400 obyvateli měl pod svou střechou i společné občanské vybaveni pro jejich potřebu. Podle projektu k němu patřily: v přízemí – restaurace, tři klubovny s přednáškovým sálem, denní společenská místnost, knihovna a v připojeném objektu jesle, mateřská školka a družina. V suterénu domu bylo možno najít prádelnu, dílny pro šití a kutily s fotokomorou. A také příslušenství pro dětská zařízení a restauraci. Na terase se nacházela tělocvična s příslušenstvím a solaria. To všechno mělo sloužit obyvatelům domu.
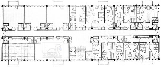
Výhodné situování v půdorysu města umožňovalo bezprostřední spojení se sousední školní čtvrtí, sportovním stadionem a zimními lázněmi pod Růmy i s centrem města. Připomeňme si pouze, že kolektivní dům nebyl míněn jako forma bydlení pro hromadnou bytovou výstavbu, ale pro určitou sociální skupinu obyvatel. Hlavní část domu se svými 11 etážemi a terasou měla devět etáží obytných s 26 byty třípokojovými o obytných plochách 55 a 62 m2 a 76 bytů dvoupokojových s obytnými plochami 39 m2. Montážní příčky z dřevěných panelů umožňovaly prostorovou úpravu bytů podle potřeb rodiny. Byty řazené podél střední chodby, z níž se vcházelo do jejich předsíní, se obracely k východu a k západu. Jejich příslušenství s kuchyňským boxem a koupelnou + WC uvnitř půdorysu bylo uměle osvětlené i větrané.
Vycházelo se z předpokladu, že obyvatelé domu se budou stravovat ve společné restauraci. V prostoru chodeb napojených na centrální schodiště s výtahy projektanti navrhovali chladící boxy, shozy na odpadky a na podestách schodiště telefonní hovorny. Zdálo by se tedy, že celé zařízení drží jasná a dobrá myšlenka a že vše poběží bez problémů. Jenže realita života mnohé změnila a došlo i na některá úsporná opatření v průběhu stavby. Víme, že podobný osud potkal mnohé domy blížící se tomuto typu i jinde.
Předpoklad, že obyvatelé a jeho společenské vybavení utvoří proporčně vyvážený a dobře fungující uzavřený organismus, narušila řada okolností. Těch necelých 400 obyvatel nemohlo zajistit ustálené využití dětských zařízení. A tak školka i jesle začaly sloužit širšímu okruhu obyvatel města a brzy se ukázala potřeba jejich rozšiřování zabíráním kluboven i společenské místnosti. Obyvatelé domu zaměstnaní v průmyslových podnicích se stravovali v závodních jídelnách a nevyužívali restauraci v domě. Ta se dostala od počátku do zájmové sféry podniku RaJ. A když se tento provoz dostával stále více do rozporů se životem obyvatel domu, převzala restauraci vysokoškolská menza.
Jakmile však restaurace přestala plnit své původní poslání, ukázaly se kuchyňky v bytech nedostačující. A tak ze všeho společenského vybavení, které mělo sloužit obyvatelům domu, zbylo nakonec poměrně málo.
Na chladící boxy v etážích se už nedostalo a telefonní hovorny i shozy na odpadky byly časem zrušeny. Z důvodů různých. Prostor mezi domem a Štefánikovou ulicí dnes částečně okupuje (mimo automobilů) tradiční kontejnerové zátiší. Takže nezbývá než konstatovat, že (možná v jiných dimenzích) nadějný pokus s kolektivním domem nebyl v našem případě úspěšný. Sociálně vzato – funguje dnes jako klasický bytový dům hotelového typu.
Kolektivní dům postavil v letech 1949 – 1951 n.p. Svit, jeho stavební oddělení. Šlo vlastně o dvanáctipodlažní monolitickou železobetonovou budovu na půdorysné osnově polí 7,30 m x 7,30 m s přízemním křídlem dětských zařízení. Jedno pole představovalo dvoupokojový byt. A taková zkušební buňka byla postavena byla postavena před zahájením vlastní stavby mezi domky na ulici Díly V., aby se prověřilo stavební i řemeslné provedení a disposice bytu. Výplně mezi nosnými sloupy tvořily horizontální pásy oken členěné sloupky a cihelné spárované parapety. Balkony - kterými disponovala pouze polovina bytů – tvořily prefabrikované sloupky a perforované panely. Tyto charakteristické prvky modelovaly charakteristický výtvarný prvek průčelí. Vůbec celá použitá konstrukce a materiály, i stavební detaily, rozvíjely tvůrčím způsobem tradiční zlínskou architekturu.
Není bez zajímavosti, že právě kvůli těmto svým kvalitám je budova zařazena do státního seznamu nemovitých památek jako příklad svébytné české moderní architektury. Dnes, s odstupem skoro šedesáti let, vidíme před sebou budovu už poněkud uměle vyšlechtěnou novodobou rekonstrukcí, která zažila i úpravy částí konstrukce a stavebních detailů. Zasloužila si to i přes fakt, že její původní poslání nebylo zcela naplněno. Stala se neodmyslitelnou součástí života i architektury města Zlína a (bohužel) zároveň i pomyslnou tečkou za dodržováním baťovského stylu výstavby obytných budov.
Původní plány Kolektivního domu a okolí
Pohled perspektivní (pohled z ulice Štefáníkova, od Orlovny
Varianta půdorysná - na té je zajímavé, že děti od 6 do 14 let, ať už Makarenkovská výchova nařizovala cokoliv, žily rozděleny dle pohlaví stejně jako za Rakouska a za První republiky. 
Česká televize natočila seriál " Příběhy domů " a v jedno díle se věnuje také Kolektivnímu domu ve Zlíně.
Možnost zhlédnutí dokumentu naleznete - zde
